| Annonce détaillée |
Appartement
-
Vanves
-
349 000 €
| Vanves (92170) |
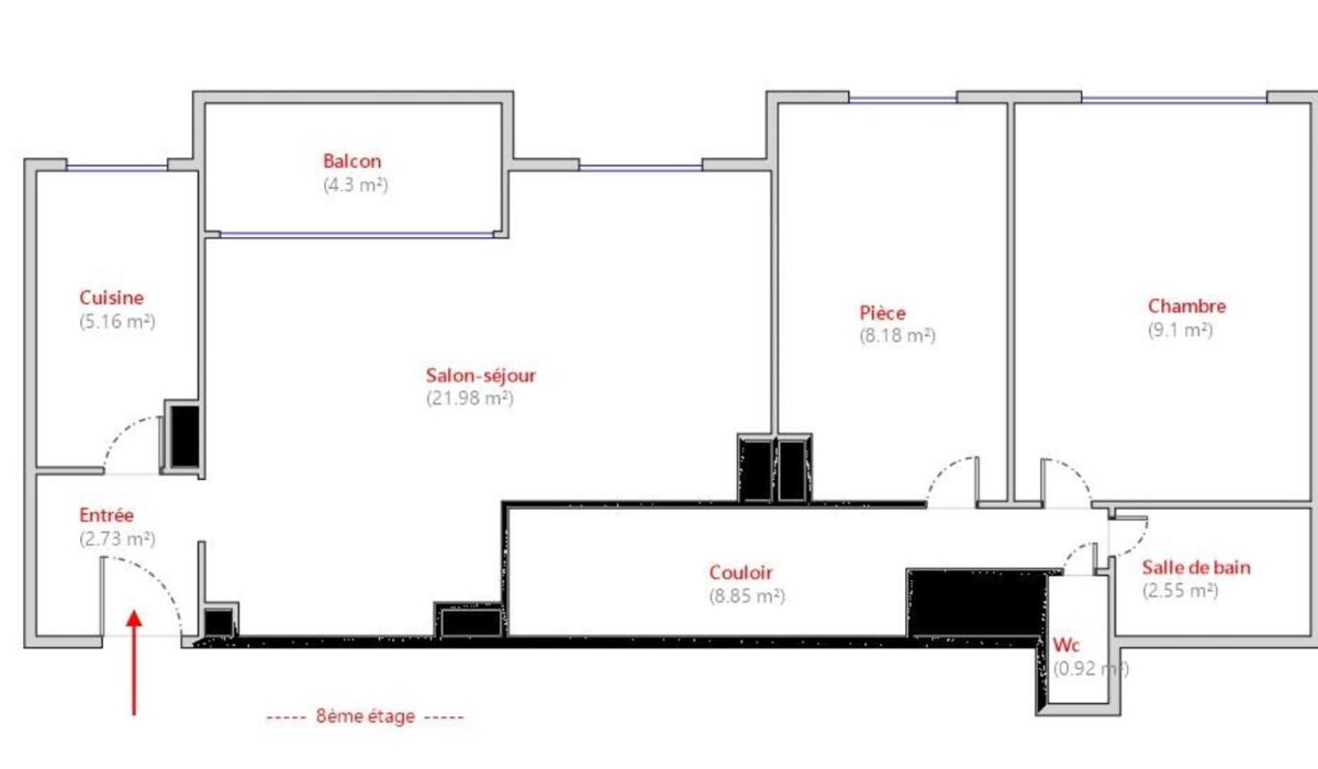
au 8eme etage sur 10 avec ascenseur, résidence sécurisée avec gardien, 3p au calme de 60m² offrant séjour ouvrant par une large baie sur un grand balcon ensoleillé dominant la coulée verte, une salle à manger, une cuisine séparée (ouverture partielle possible sur le séjour), 2 chambres, 1 salle de bains et des toilettes séparées, nombreux rangements. Travaux à prévoir. Une cave et une place de parking intérieure complètent l'ensemble. Proche bus, gare (Vanves-Malakoff), métro 13 (Malakoff-Plateau de Vanves) écoles et commerces. DPE: D
Mandat : 584
| Informations Complémentaires |
- Cave
- Statut du négociateur : Agent immobilier
- Nb. de pièces : 3
- Pourcentage des honoraires acquéreur : 3.56 %
- Honoraires à charge de : acquéreur
- Prix hors honoraires acquéreur : 337 000 €
- Année de construction : 1955
- Surface cuisine : 5 m²
- Surface du balcon : 4 m²
- Double vitrage
- Taxe foncière : 1 108 €
- État general : A rénover
- Orientation : NO
- Étage du bien : 8eme
- Nbre. de chambres : 2
- Interphone
- Nbre. d'étages : 10
- Chauffage : collectif Gaz
- Ascenseur
- Parking
- Gardien
- Nb. de salles de bain : 1
- Balcon
- Nb. de WC : 1
- Surface habitable : 60 m²
| Diagnostic de Performance Énergétique (DPE) |
Coût énergétique minimum :
1060 €
Coût énergétique maximum :
1470 €
Année de référence consommation :
21/05/2025
| Contactez Nous |
Pour plus d'informations sur cette annonce, n'hésitez pas à nous contacter
SAS Sabine de Jarnac
Tel : 01 47 41 74 01
Annonce 10 / 8